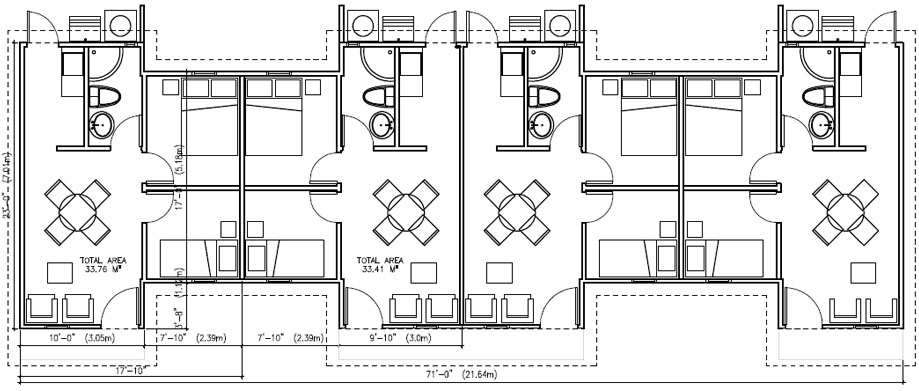
Dominican 4 Plex 2 Bedroom

2 Bedroom, 1 Bath
Total Area 1651sf, 153.39 m2

multifamily 2 bedrooms, 2 bathmultifamily 2 bedrooms, 2 bath infoFloor planFloor plan info